Synthesis

Synthesis: Combination of parts to form a whole


This project is a branch off of the Chicago-based Wild Mile plan, which is an organization aiming to provide an environment for habitat, creation, and education through a floating eco-park on the North Branch Canal of the Chicago River (East side of Goose Island).

Site Location: N Kingsbury St & W Evergreen Ave., Chicago, IL

@ Wild Mile's Proposed Water Experience Station

Credit: wildmile.org

I tied Wild Mile’s agenda into my design by providing:

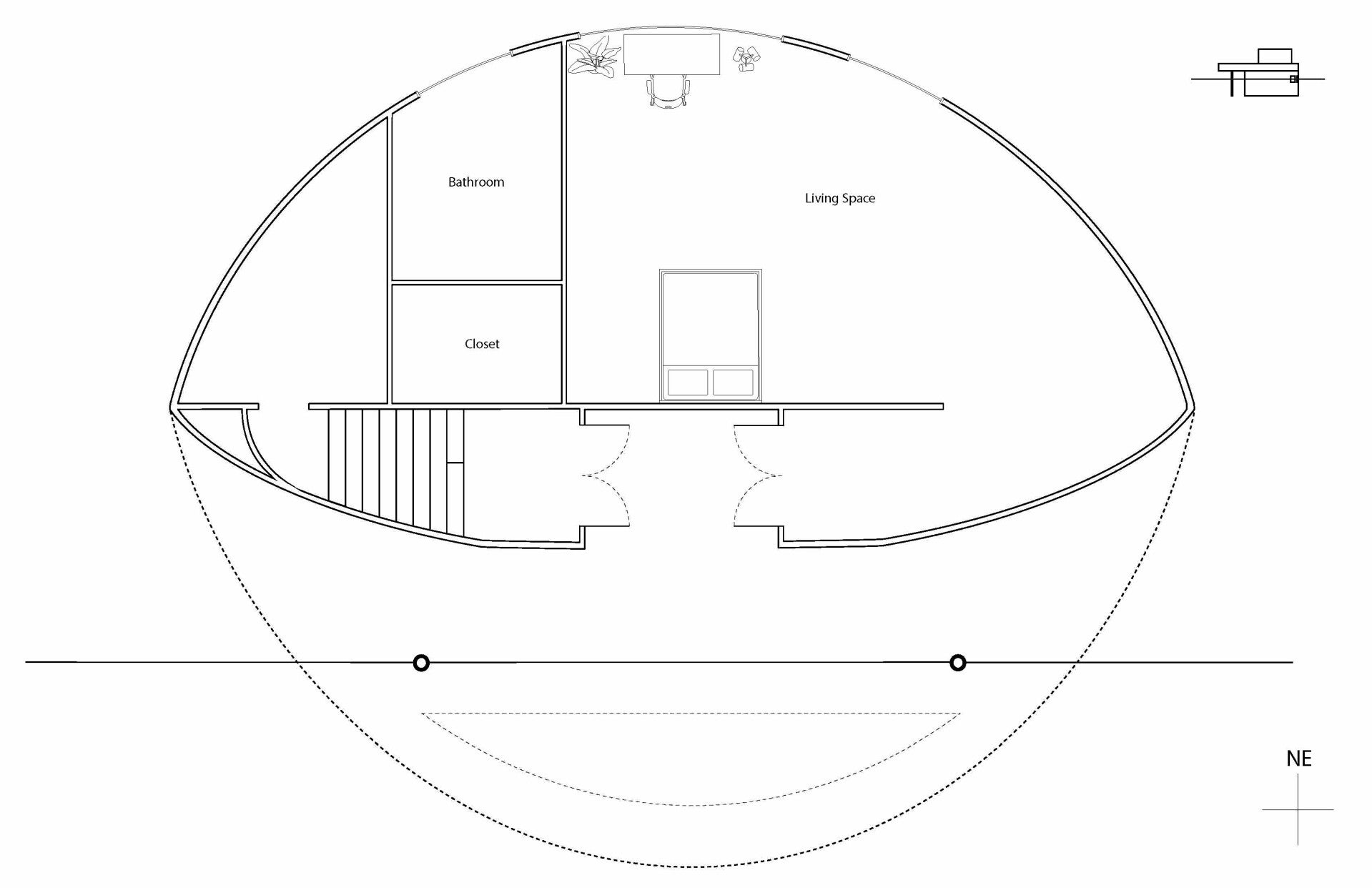
- Studio space for art development

- Nature-based research

- Mentorship opportunities

 

The various viewpoints set a productive ambiance to inspire students and upcoming artists. It creates accessible activities like:

- Bird-watching

- Observation sketching

- Star-gazing

- Sunset/cityscape viewing

 

It also invites visiting artists as they can set up private living arrangements directly below the studio for extended amounts of time.

Living Space

Studio Space