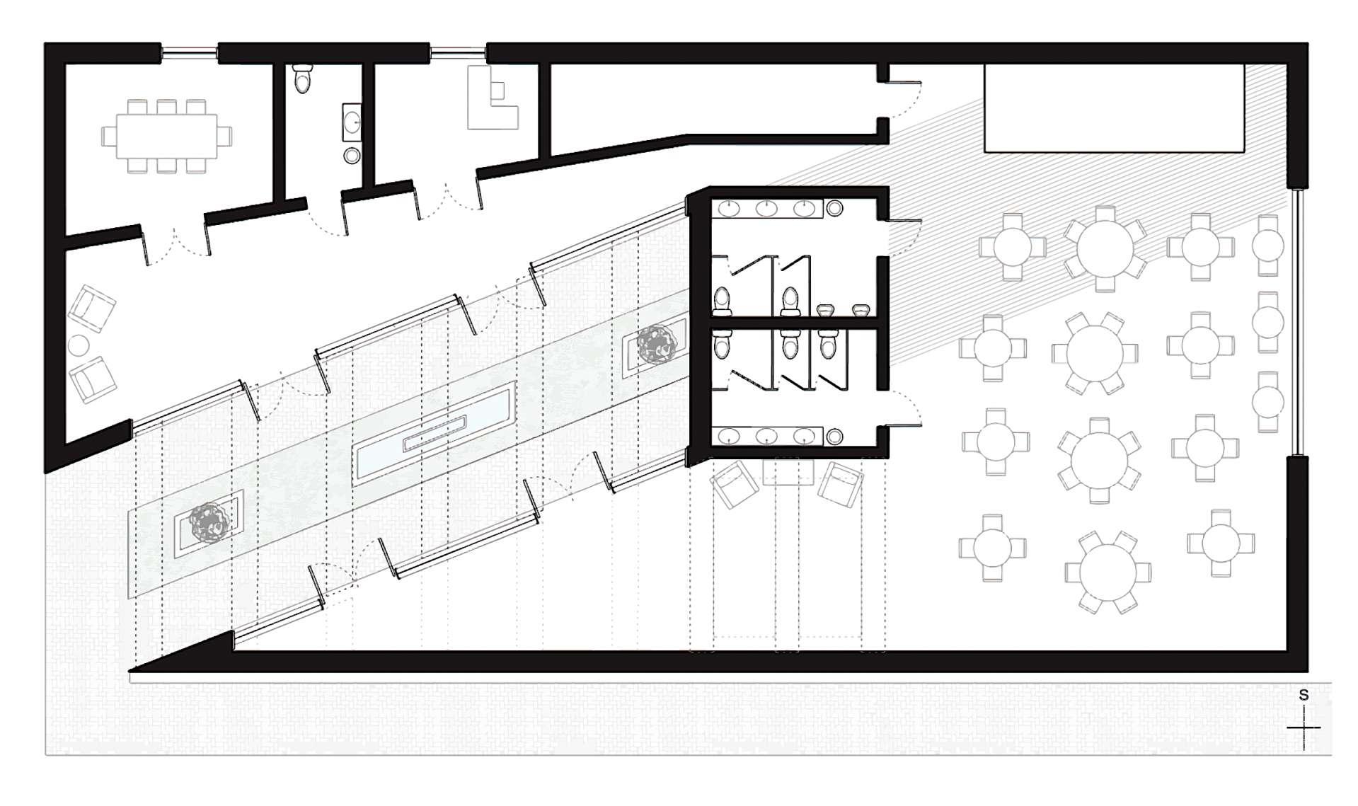
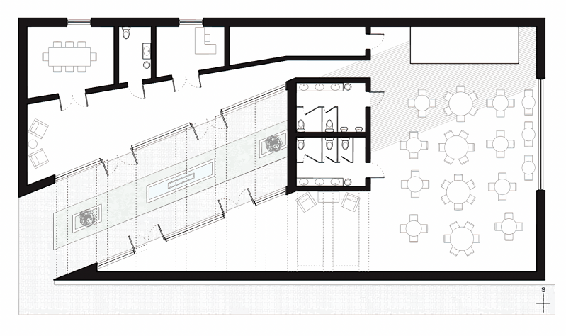
Architect Union Hall

Tasked to design an architect union hall, I was challenged to make a "self-evident" form with consideration of site constraints (busy roads, surrounding facilities, pavement flow). This site's mission is to provide a communal haven for civic life that invites productivity and unity to its Chicago area.

Site Location: W Randolph St. and N Elizabeth St., Chicago, IL